- Sommaire
-
-
-
-
|
Construire
un tour à pied
|
-
-
-
-
-
-
- Traduction Française
de la page web de Randy Smith par
Smart2000
- (revue et corrigée
par Édouard Bastarache, l'irréductible
Québecois).
- Randy Smith,
USA.
- e-mail : smith@twcny.rr.com
-
-
- Ce document
est en quatre parties (4 pages) pour
permettre l'utilisation des documents
originaux illustrant le guide de
construction de R. Smith.
- Nous vous
conseillons de télécharger
ces pages pour les exploiter plus
facilement.
-
- Sur les plans
les dimensions sont reportées en
pouces en pieds et en
millimètres.
- 1 pouce (one
inch) = 25,4 mm
- 1 pied (one
foot) = 304,8 mm
- Dans le
commerce du bois, aux USA, on traduit
souvent 1 pouce = 25 mm.
|
|
-
-
-

|
- Tour à
pied
- (à
pédale, style Leach)
-
-
-
- La hauteur de la
pédale est réglable sur ce
tour, il convient donc à la plupart
des personnes. Pour une girelle
très petite ou extrêmement
grande les dimensions globales peuvent
être ajustées sans nuire au
tour.
-
- Vous
pourrez faire des économies
appréciables si vous vous procurez
du bois de récupération de
bonne qualité, mais aucun compromis
ne devrait être fait pour construire
l'arbre qui devra être conçu
dans les règles de l'art. Si
l'arbre est mal aligné, la girelle
oscillera.
-
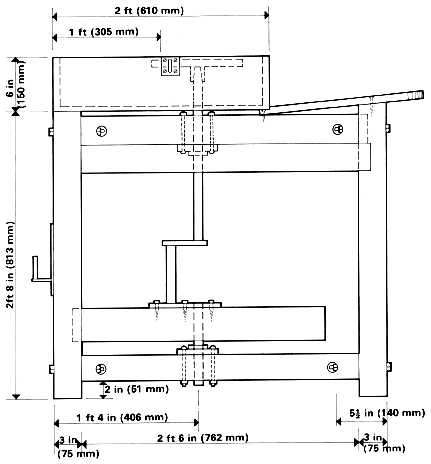
- VUE
N°1
- Tour en vue de
côté
|
-
-
- La roue (le
volant d'inertie)
-
- Les dimensions
de la roue sont de 72 cm pour le
diamètre et 10 cm en
épaisseur. Elle est
constituée de planches
collées et vissées l'une sur
l'autre en croix. Utilisez du bois bon
marché. Si une roue lourde est
nécessaire faites-la plus profonde
et /ou ajoutez des poids en plomb sur le
bord extérieur.
- Celle-ci est de
poids moyen. Les dimensions peuvent
être modifiées selon vos
besoins. Si vous faites principalement des
petites pièces en grande
quantité je vous recommande une
roue plus légère. Une roue
plus lourde convient mieux pour les
grandes pièces.
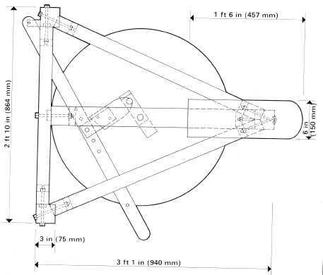
Vue
n°2
Plan
du tour en vue de dessus
|
|
-
-
|
- Construire une
roue creuse qui peut être remplie
avec différentes quantités
de lest est assez facile. Cela a le grand
avantage de vous permettre d'essayer et de
déterminer le poids idéal
qui vous convient selon le type de
pièces que vous faites. Pour la
production de petites pièces une
roue légère est un avantage
tandis qu'une roue plus lourde qui a plus
d'inertie devant démarrer et
s'arrêter sans cesse peut être
très fatigante. Lorsque vous faites
de grandes pièces une roue lourde
est préférable, sa plus
grande inertie permet de tourner lentement
en pédalant moins, ce qui est
idéal pour le travail au ralenti
dans la fabrication des grandes
poteries.
-
- Cette roue
devrait ressembler à celle
montrée sur la vue n°2. Le
côté peut être
réalisé avec un fin bandeau
de contreplaqué. Mis à
tremper dans de l'eau, il peut ensuite
être mis en forme par cintrage
facilement. Si vous disposez d'une scie
à ruban le côté peut
être constitué de morceaux de
bois assemblés par collage. Lorsque
la colle est sèche, la roue est
découpée dans son entier
avec le dessus et le dessous.
-
-
-
-
- Vue n°3
:
- Plan sur
détails de la roue
|
-
-
-
-
-
-
- L'arbre
-
- L'arbre est
conçu dans du rond d'acier de 25 mm
de diamètre (Voir vue n°4). Un
atelier local de mécanique agricole
ou de forgeron est l'endroit idéal
pour faire réaliser les travaux sur
métaux nécessaires dans la
construction de ce tour.
- Les
articulations (la partie vilebrequin) sont
soudées tandis que l'arbre tourne
lentement, ainsi la soudure est uniforme
et aucune contrainte ne déforme le
métal. L'arbre est
réalisé en conservant en
place la section R qui sera
découpée une fois les
travaux de soudure terminés. Le
vilebrequin est excentré de 75 mm,
ce qui rend la vitesse rotation de la
girelle assez régulière. Si
cette cote est diminuée d'environ
19 mm (3/4 de pouce) il tournera plus vite
; s'il est augmenté de 25 mm (1
pouce) il ira plus lentement. Toutefois,
l'excentrique de 75 mm convient à
la plupart des personnes. Les plats
(repère "S" sur la vue n°4)
sont larges de 50 mm. L'emmanchement de la
girelle (repère "M" sur la vue
n°4) est réalisé par un
cône morse n°3. Les autres
équipements d'emmanchement
standards sont une vis 'whithworth' de
¾ de pouce (19 mm) et une vis
'continental' de 20 mm. (Aux États
Unis il n'y a pas de tels emmanchements
normalisés et le coût d'un
usinage de cette sorte serait hors de
prix. Il est possible d'utiliser des jeux
de vis standards seuls comme emmanchement
de girelle)
-
-
-
-
-
-
-
-
-
-
-
Vue
n°4 :
Plan
des pièces métalliques et du
plateau
|

|
-
-
- Support de
pédale "C" (sur vue
n°4)
-
- Il est fait
à partir de cornière en fer
de 50 mm. Percé de trois trous pour
pouvoir le fixer sur le pied du tour. Il
comporte un axe de 12 mm muni d'une
clavette à son
extrémité pour retenir la
pédale.
-
- Connecteur de
vilebrequin "D" avec "A, B et L" (sur vue
n°4)
-
- Le connecteur
est composé d'un bloc de bois de 51
x 76 mm (2 x 3 pouces) et est maintenu sur
la pédale par des fers plats "A" et
"B". Un boulon de 12 mm long de 90 mm
passe à travers les grands trous
des fers plats "A" et "B" et au travers de
la pédale (barre). La fixation sur
la pédale peut être rendue
variable en perçant plusieurs trous
sur la barre. Huit trous à 50 mm
donneront au tour une gamme de rapports de
pédalage. Selon la hauteur et la
carrure du tourneur, un de ces trous sera
le mieux approprié. Le connecteur
est maintenu sur l'arbre du vilebrequin
par une bande en cuir "L" fixée par
deux vis ou des boulons.
Vue
n°5 :
Photos
des pièces
|

|
-
-
-
-
-
-
- Notes
d'assemblage
-
-
- A :
Couper tout le bois pour le châssis
(sauf la traverse) et tailler les tenons
d'assemblage
nécessaires.
- B :
Tailler les mortaises
d'assemblage.
- C :
Assembler le châssis. Pour une bonne
rigidité et une fixation permanente
les assemblages peuvent être
collés et chevillés. Si vous
souhaitez que la roue soit
démontable ultérieurement
les assemblages seront laissés secs
(sans colle) et des boulons seront
utilisés pour les renforcer. Pour
certaines parties il peut être
préférable d'utiliser des
boulons à écrous
prisonniers. Après montage le tour
a une largeur de 86 cm. S'il ne passe pas
dans l'encadrement de la porte de votre
atelier les assemblages montés
à sec et renforcés de
boulons sont préférables.
- D :
Tailler les trous pour l'arbre dans les
barres du dessus et du dessous, poser le
palier du bas et mettre l'arbre en
position.
- E :
Fabriquer la roue et la mettre en
place.
- F :
Boulonner la roue sur l'arbre et
insérer l'arbre dans le palier du
bas.
- G :
installer le palier du haut et
l'insérer sur l'arbre.
- H :
Fabriquer et installer la pédale
sur le vilebrequin (Voir les notes sur la
fabrication du connecteur).
- I : Poser
la traverse sur le châssis. Elle est
installée sur le côté
gauche. Partant du bas au-dessus de la
roue sur le pied supportant le
siège jusqu'au haut du pied
opposé. Elle doit être
coupée à longueur sur mesure
et boulonnée sur le châssis.
Cette traverse accroît la
rigidité du
châssis.
- J :
Fabriquer le plateau. Il est cloué
et collé avec une colle insoluble
dans l'eau, puis peint à
l'intérieur avec au moins 4 couches
de vernis polyuréthane
résistant à l'eau ou une
peinture laque
résistante.
- K :
Installer le siège et le
plateau sur le châssis. Le plateau
peut être soit vissé sur le
châssis soit rendu amovible en
fixant dessous deux chevilles. Elles
s'emboîtent sur les
extrémités des pieds et un
petit crochet de porte maintient ce
dispositif en place.
- L :
Graisser et peindre.
-
-
-
-
-
- Matériaux
-
-
- Bois
(Soit du bon bois tendre ou du bois
dur)
-
- Pour le
châssis :
- 5 longueurs de
75x75x920 mm
- 7 longueurs de
75x50x920 mm
- 1 longueur de
75x50x1220 mm
- Côtés
du plateau :
- 1 longueur de
150x25x3050 mm
- 1 plaque de
contreplaqué pour la base (Voir vue
n°4)
- Siège
:
- 1 longueur de
150x40x450
- Et le bois pour
la roue.
-
-
- Pièces
en métal
-
- Arbre
- Crochet de
fixation de la pédale
- Connecteur de
vilebrequin
- Crochet pour
chaîne
- 75 cm de
chaîne à maillons (pour
soutenir la pédale)
- 14 boulons de
150x12
- 10 boulons
à écrous prisonniers
75x10
- 1
girelle
- 13 cm de tuyau
en plastique de dia 64 mm
- 2 paliers
à auto-centrage de 25
mm
- 1 un petit
crochet de porte
- 1 bande de cuir
de 50x180 mm (pour le
connecteur)
- Quelques vis, du
vernis, de la peinture.
-
-
|
- Assemblage
du châssis
-

-

-

-
- Montage
de l'arbre, de la roue, des
paliers
-

-
- Le
tour
terminé
-

-
|
-
-
- Smart2000.fr
©
Juillet 2001
-
FRANCE
- Écrit
et documenté par le propriétaire du site
// Contact : Smart2000@wanadoo.fr
- Document
pour CONSULTATION PRIVÉE uniquement - Toute
reproduction totale ou partielle est
interdite
-
-
-
-
- Smart2000.fr
le site
dédié aux passionnés de
céramique
-
- Smart2000
- FRANCE sur https://smart2000.fr/
-
- This
entire page Copyright © 2001-2023, All Rights
Reserved.
- Les
textes et les photos restent la
propriété de leur auteurs, ils ne
peuvent être réutilisés sans un
accord préalable. Nous
consulter.
|